English
Español
Português
русский
Français
日本語
Deutsch
tiếng Việt
Italiano
Nederlands
ภาษาไทย
Polski
한국어
Svenska
magyar
Malay
বাংলা ভাষার
Dansk
Suomi
हिन्दी
Pilipino
Türkçe
Gaeilge
العربية
Indonesia
Norsk
تمل
český
ελληνικά
український
Javanese
فارسی
தமிழ்
తెలుగు
नेपाली
Burmese
български
ລາວ
Latine
Қазақша
Euskal
Azərbaycan
Slovenský jazyk
Македонски
Lietuvos
Eesti Keel
Română
Slovenski
मराठी
Srpski језик Para sa lahat ng3-in 1 h beam welding line na gumawa ng byjinfeng weldcut ay magkakaroon ng 12 buwan na warranty, na ang pinakamataas na kahusayan ng makina upang madagdagan ang pagiging produktibo para sa mga end-user mula sa istraktura ng bakal, tulay, konstruksyon.
|
Modelo |
ZHJJ15 |
ZJ18 |
ZHJ20 |
|
T-beam webheight (h) |
200 ~ 1500mm |
200-1800 |
200-2000mm |
|
Kapal ng web (d) |
6 ~ 12mm |
6 ~ 19mm |
6 ~ 30mm |
|
Flangewidth (b) |
200 ~ 800mm |
200 ~ 1000mm |
|
|
Flangethickness (T) |
6 ~ 25mm |
6 ~ 40mm |
|
|
Haba ng beam (l) |
4000 ~ 15000mm |
4000 ~ 15000mm |
4000 ~ 15000mm |
|
Beam material |
Q235 |
||
|
Uri ng welding |
Submerged arc transverse fillet welding |
||
|
Pinagmulan ng Welding Power |
Solong wire o twin wire type |
Solong wire |
Solong wire |
|
Bilis ng welding output |
200 ~ 1000 mm/min |
||
|
Anggulo ng sulo: |
45 ° Fine Adjustment |
||
|
Presyon ng haydroliko |
≤14 MPa |
||
|
Flux Recovery System |
2sets |
||
|
Dami ng flux hopper |
2 × 50L |
||
|
Input conveyor roller: |
12000 mm |
||
|
Output conveyor roller: |
12000 mm |
||
|
Pangunahing lakas ng makina |
18.0kw |
||
|
Hydraulic System: |
1set |
||
|
Straightening Unit |
1 set, isinama sa makina |
||
|
Power Supply: |
AC/380 V/50 Hz/3PH |
||
|
Pagtuwid ng kakayahan |
6-40mm |
||
Ang 3-in 1 h beam welding line ay bilang pinagsama function ng H beam, T-beam pagpupulong, welding at flange deform na straightening pagkatapos ng hinang. Sa gayon maaari itong tumpak at mabilis na mapagtanto ang H beam at t beam production.Ito ay may mga sumusunod na pakinabang: simpleng operasyon, mas kaunting gastos sa paggawa at maliit na lugar na sumasaklaw.
Ang linya na ito ay may dalawang opsyonal na proseso ng hinang para sa iyo upang pumili alinsunod sa istruktura na plate na plate na may welded:
Pagpipilian A: Single arc twin wire welding na kung saan ang rate ng pag -aalis ay 40% na mas mataas kaysa sa pangkalahatang solong arko solong wire na lubog na arko na hinang, sot ito ay lalong angkop para sa istraktura ng bakal na kapal na kung saan ang kapal ay mas mababa sa 20mm.
Pagpipilian B: solong arko solong wire welding.it na angkop para sa mas malaking saklaw ng welding ng kapal ng plate.
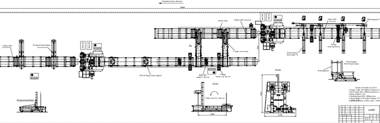
Ang karaniwang mga linya ng welding ng ZHJ3-in 1 h beam ay binubuo ng isang talahanayan ng roller ng input, pangunahing istasyon ng hinang at straightening, outputroller table.
1. StandardZHJ3-in 1 h beam welding line

2. Pagpipilian 1:
Tulad ng bawat magkakaibang mga kahilingan mula sa mga customer, nagbibigay din kami ng pagsasaayos para sa Thezhj3-in 1 h beam welding line tulad ng sumusunod:
Batay sa karaniwang mga linya ng welding ng 3-in-1 h beam, may magdagdag ng isang hanay ng mga web-loader, kung saan ang mga 4 na PC ng magnet loading arm at 4pcs ng web supporter.on bawat web loading arm mayroong 2pcs ng magnet para sa paghawak ng bakal na web plate.

3. Pagpipilian 2:
Tulad ng bawat magkakaibang mga kahilingan mula sa mga customer, nagbibigay din kami ng pagsasaayos para sa Thezhj3-in 1 h beam welding line tulad ng sumusunod:
Batay sa karaniwang mga linya ng welding ng 3-in-1 h beam, may magdagdag ng isang hanay ng mga web-loader, kung saan ang mga 4 na PC ng magnet loading arm at 4pcs ng web supporter.on bawat web loading arm mayroong 2pcs ng magnet para sa paghawak ng bakal na web plate.
Batay sa itaas, maaari kaming magdagdag ng isang hanay ng 90 degrees beam flipper sa output roller table para maibagsak ang welded beam sa pahalang na posisyon.

3. Pagpipilian 3:
Ang ilang mga customer ay maaaring kailanganin upang madagdagan ang output ng theproduction, kailangan nila ng isang linya ng hinang upang binubuo ng 2 hanay ng istasyon ng welding.Ang unang istasyon ng hinang para sa pag-welding ng 1st flange at web upang makabuo ng isang t beam, ang ika-2 para sa pag-welding ng welded t-beam at 2nd flange upang mabuo ang isang h beam.
3.1 Kaya batay sa karaniwang mga linya ng welding ng 3-in-1 h beam, magdagdag ng isang hanay ng mga web-loader, na kung saan ang mga 4 na PC ng magnet loading arm at 4pcs ng web supporter.on bawat web loading arm mayroong 2pcs ng magnet para sa paghawak ng bakal na web plate.
3.2 Upang magdagdag ng 1 hanay ng T-beam na ibagsak upang i-on ang T-beam sa 180 degree at inilalagay ang T-beam sa 2nd flange sa input roller table ng 2nd welding station.
3.3 Upang magdagdag ng isang hanay ng 90 degrees beam flipper sa output roller table ng2nd welding station para ibagsak ang welded beam sa pahalang na posisyon.
T beam at daloy ng produksyon ng H-beam
3-in-1 integrated H-beam welding line na naka-install sa pabrika ng mga gumagamit